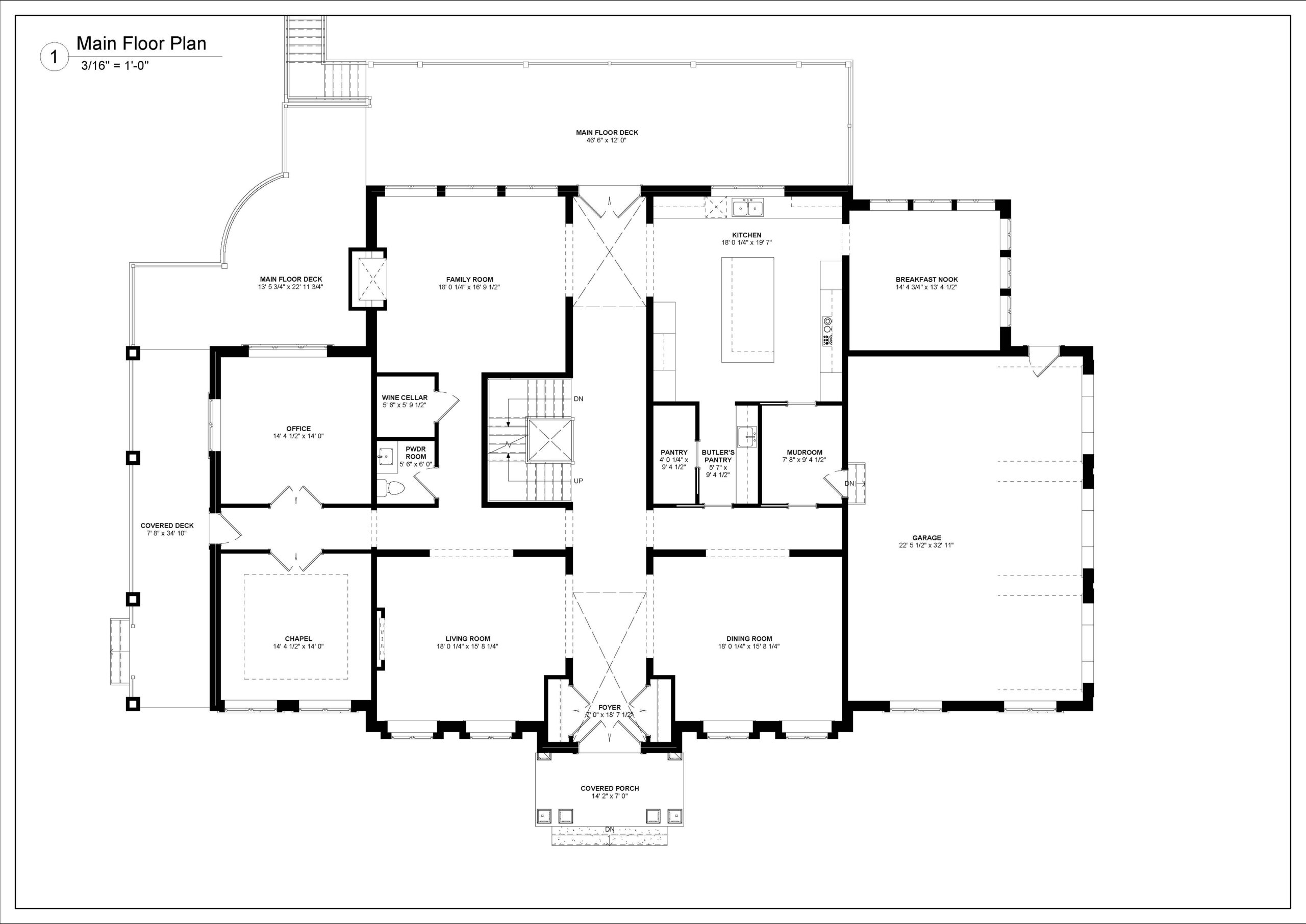
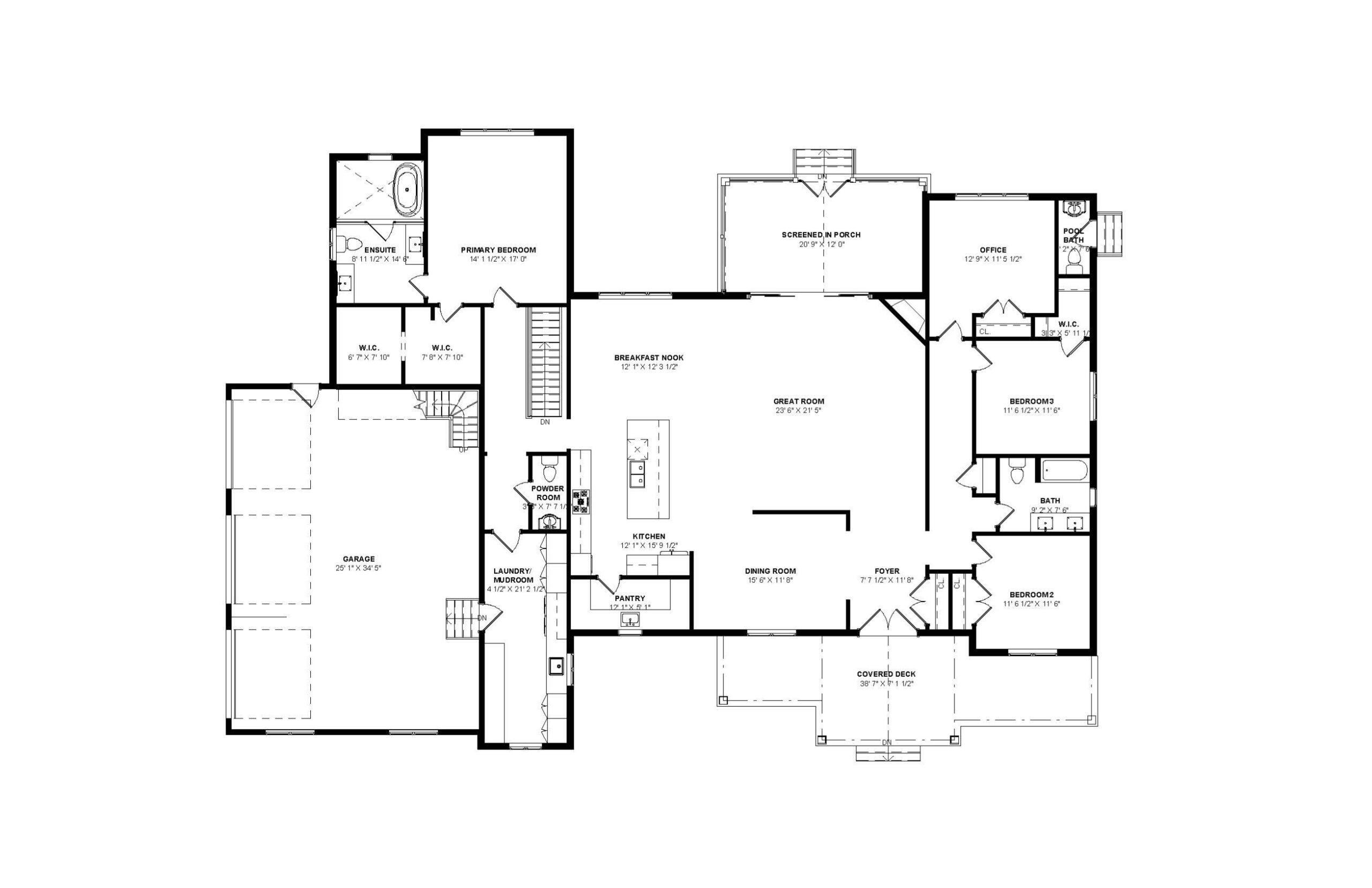
Floor Plans & Renders

At JDC Custom Homes we believe that building a home is more than constructing walls. It is about creating lasting relationships built on trust, care and a shared vision. We blend decades of design and construction experience with a deeply client-centred approach to deliver homes that reflect your lifestyle and aspirations. Our floor plans and renders showcase our commitment to our core values of Heartfelt Impact, Excellence, Loyalty and Passion. We take pride in doing things right, paying attention to every detail, communicating clearly and honestly, and treating you with respect at every step. When you work with JDC, you receive personalized service, transparent planning and exceptional craftsmanship so your dream home becomes both a space and an experience.

Our in-house BCIN designers prepare permit-ready drawings in accordance with municipal requirements for renovations, additions and new homes. We specialize in residential design services under a Small Buildings BCIN designation. Our team includes an Architectural Technologist and Registered Building Technician, bringing a strong focus on thoughtful and functional space design.  

We are here to help make your design journey a smooth transition to the build. We offer Consultations, 3D photorealistic renderings (both interior and exterior), 3D walk-around videos, 2D concept floorplans and elevations and a full permit-ready construction drawing package that includes floorplans, elevations and the necessary building sections and details. We have a team of qualified engineers and surveyors that we bring in when the project requires.